PVD Blackbird Seat Tube OEM Order

Hey folks,

Bent seat tubes have become a necessity in modern mountain bike construction. Why? Dropper seatposts take up considerable straight line space within the tube while short chainstays and large diameter wheels compete for the same space. Something has to give and it means a bend at the bottom of the tube. The problem? Few people have the $200k bending tools needed for proper small radius bends in the large diameter thin wall tubing that accomidate 30.9mm and higher seatposts. This problem is exacerbated on frames for folks shorter than 6 feet tall.

I’m making an offer here. Act quick on this. I’m placing the order on Monday for these seat tubes and I’ve decided to open possibilities to others because I know all to well how hard it is to make things happen when you only need a couple of parts. Because the cost of these bends are so brutal for short run, a group buy will reduce overall costs.

These tubes are going to be bent by one of the best bending contractors that I’ve dealt with in the past. They do amazing work and do bends you wouldn’t think possible. I’ve done work with a less expensive contractor before for these tubes but their last job left me wanting to get 100% no bullshit work.
 
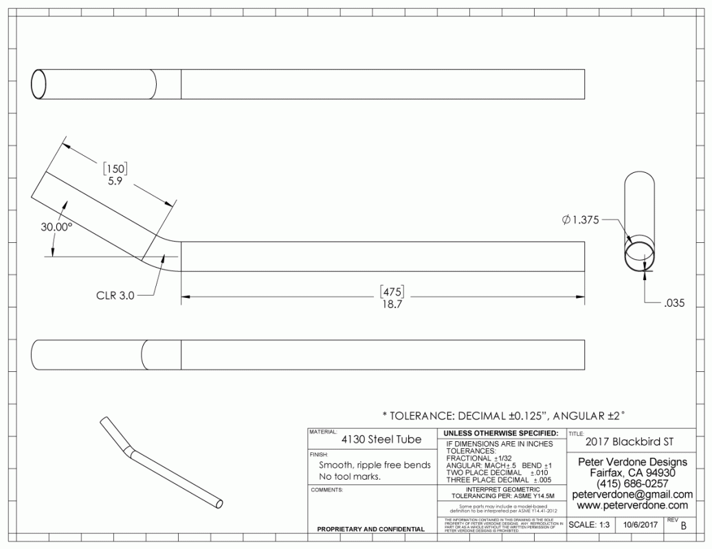
Tubing, 1.375″x0.035″ 4130N Steel.
 
CLR, 3.0″ (fuck yeah!)
 
Bend Angle, 20 or 30 degrees
 
I’ve enclosed prints showing the effect of the bend in the frame. 30 degree bend is best for bikes for people under 6′. 20 degree bend for people over 6′. The goal is to allow use of 170-200mm dropper posts with internal routing. Also, some photos of one of my more recent frames with a 30 degree bend on a 4.0″ CLR.
 
I’m going to price the tubes at $65 each in lots of three (3) plus shipping. $210+. Tubes paid for now, shipping costs when going out. Order can be of mixed bends.
 
These will be in my hands mid-December.
 
Respond via email at peterverdone@gmail.com
 
If you are interested in titanium tubes, contact me also. I can start work on that if demand is great.
 
 
 
Here is a past bike using a tube bent at 30 degrees around a 4.0″ CLR
 
 
 
Here’s an example of past work done by these folks,
1.25″ OD x 0.035″ about a 2.0″ CLR. I have a few of these tubes I can sell for $30 each. Perfect for stems.
 
In case you missed my post on bent seat tubes and how to work with them, you can find it HERE.